Freestander als Bakery Cube bauen - effizient planen und umsetzen
Clevere Geschäftseinheiten, Verkaufsflächen, Büros oder Ladenlokale, Smart Stores für die Nachverdichtung
Modern, einladend und schnell baubar - der Freestander als Bakery Cube
Ein Freestander ist eine kompakte, freistehende Lösung für moderne Bäckereikonzepte – von der Einzelbäckerei bis zur Filialstruktur. Durch die klare Flächenaufteilung, kurze Bauzeiten und eine wirtschaftlich planbare Umsetzung eignet sich dieses Konzept besonders für Standorte mit begrenztem Platzangebot oder hoher Kundenfrequenz. Hier finden Sie Beispiele.
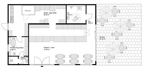
Effiziente Grundrissideen für Ihr Freestander Projekt
Eine individuelle und effiziente Grundrissplanung ist die Basis für die Umsetzung jedes Freestander-Projektes. Da die Rahmenbedingungen bereits spezifiziert sind, kann die Planung und der Bau schnell durchgeführt werden. Wir haben für Sie hier einige Grundrissbeispiele aus der Praxis zusammengestellt.
Der Freestander als modulare Shoplösung und seine Möglichkeiten der Außengestaltung
Der Kubusbau bringt auch ein Konzept mit, wie Sie das Gebäude für Ihre Markenbotschaft nutzen können. Die Fassadengestaltung kann in Putz oder auch mit einer Teilholzverkleidung oder Klinkerfassade realisiert werden. Auch verschiedene Dacharten können auf Anfrage realsiert werden. Große Panoramafenster sind vorteilhaft für alle, die im Gebäude sind und ziehen die Aufmerksamkeit auf alle, die am Gebäude vorbeifahren oder gehen. Hier finden Sie ein Umsetzungsbeispiel für einen Bakery Cube.
Ihre Vorteile beim Bauen mit STREIF
Wirtschaftlich, energieeffizient und nachhaltig: Ein modulares Storekonzept für die Zukunft
Der Bakery Cube überzeugt durch seine moderne Holzständerbauweise und bietet ein Höchstmaß an Flexibilität: Grundriss und Design lassen sich präzise an Arbeitsabläufe, Standortgegebenheiten und zukünftige Anforderungen anpassen. Dank der modularen Konstruktion ist eine Erweiterung – sogar auf zwei Geschosse - jederzeit möglich. Gleichzeitig entsteht ein wohngesundes, angenehmes Raumklima. Photovoltaiksysteme können nahtlos in das nachhaltige Energiekonzept integriert werden.
Auch wirtschaftlich bietet das Konzept klare Vorteile: Die hohe Vorfertigung reduziert die Bauzeit deutlich, senkt Transportaufwände und sorgt für verlässliche Kalkulationssicherheit bei konstant hoher Qualität.
Ein weiterer Pluspunkt: Die Standorte können flexibel - ohne Öffnungszeitenbeschränkungen - betrieben werden und ermöglichen je nach Bedarf hybride oder vollständig autonome Betriebsmodelle.
Flexibel: Die Ausbaumöglichkeiten und der Ladenbau
Flexibel können Sie als Bauherr/Investor zwischen verschiedenen Ausbaustufen wählen. In Kooperation mit unserem Partner für Ladenbau, der Firma KORTE Einrichtungen GmbH aus Kürten, ist ebenfalls eine Laden- oder Funktionsausstattung des Gebäudes plan- und umsetzbar. Hier zeigen wir Ihnen ein Anwendungsbeispiel für einen Bakery Cube für Bäckereifilialen.
Energieeffizient: Die moderne Haustechnik
Die Beheizung und Kühlung der Arbeits-und Verkaufsräume erfolgt über eine wärmepumpengesteuerte Klimatisierung via Deckenkassetten. Mit dem Flachdach bietet sich eine großzügige Möglichkeit Photovoltaik-Module zum Einsatz zu bringen, die die Energieeffizienz weiter steigern oder auch als Einnahmequelle dienen können.
Zukunftssicher bauen mit STREIF
Verlässlichkeit, modernes Design und ein überzeugendes Preis-Leistungs-Verhältnis: STREIF zählt zu den führenden Fertighausherstellern in Deutschland. Unsere vielfach ausgezeichneten Häuser verbinden höchste Bauqualität mit nachhaltigen Materialien und umfassenden Kundenservice - für ein Gebäude, das begeistert.
Freestander bauen: Welche Vorteile bietet Fertighaus Anbieter STREIF?
Freestander, Bakery Cube bauen mit STREIF: Wir bieten höchste Präzision, kurze Bauzeit und nachhaltige Qualität. Wenn Sie ein Freestander Projekt planen, profitieren Sie bei STREIF von klaren Vorteilen: kurze Bauzeit dank planbarer Vorfertigung, energieeffiziente Bauweise mit innovativer Passivaußenwand, nachhaltige Materialien aus zertifizierter Forstwirtschaft und flexible Grundrissgestaltung. Unsere modernen Gebäude überzeugen durch Qualität, Komfort und ein gesundes Raumklima.
Hier erfahren Sie mehr über die STREIF-Bauweise.
Diese Themen könnten Sie auch interessieren



Wissenscheck
Freestander Bakery Cube bauen - Planung, Genehmigung & Kosten
Bakery Cube als Freestander bauen - Planung, Anforderungen und Vorteile
Ein Freestander Bakery Cube ist eine kompakte, freistehende Gewerbeeinheit für Bäckereien, Cafés oder Backshops – ideal für Standorte mit hoher Frequenz, begrenzter Fläche oder als Ergänzung zu bestehenden Filialnetzen. In diesem Wissenscheck erhalten Sie einen strukturierten Überblick über die Planung, baurechtliche Anforderungen, Technik, Kosten und Vorteile – klar, verständlich und praxisnah.
Bakery Cube als Freestander bauen - Planung, Anforderungen und Vorteile
Ein Freestander Bakery Cube ist eine kompakte, freistehende Gewerbeeinheit für Bäckereien, Cafés oder Backshops – ideal für Standorte mit hoher Frequenz, begrenzter Fläche oder als Ergänzung zu bestehenden Filialnetzen. In diesem Wissenscheck erhalten Sie einen strukturierten Überblick über die Planung, baurechtliche Anforderungen, Technik, Kosten und Vorteile – klar, verständlich und praxisnah.
1. Was ist ein Freestander Bakery Cube?
Ein Freestander Bakery Cube ist ein modularer, freistehender Baukörper, der alle wesentlichen Funktionen einer Bäckerei auf kompakter Fläche vereint:
- Verkaufsbereich
- Produktions- bzw. Aufbackzone
- Lager und Technik
- Optional: Sitzplätze für die Bewirtung innen/außen
Die entscheidenden Vorteile: Schnelle Realisierung, standardisierte Prozesse und hohe Gestaltungsfreiheit – bei gleichzeitig planbarer Investition.
2. Für wen eignet sich ein Bakery Cube?
Ein Bakery Cube ist besonders geeignet für:
- Bäckereiketten und Filialisten
- Einzelbäcker mit Fokus auf To-go-Konzepte
- Tankstellen, Fachmärkte, Gewerbeparks
- Temporäre oder saisonale Standorte
Durch die kompakte Bauweise lassen sich auch Restflächen oder Randlagen wirtschaftlich nutzen.
3. Standort und Grundstück - das sollten Sie prüfen
Vor der Planung sind folgende Punkte entscheidend:
- Baurecht: Bebauungsplan, Nutzung (Gewerbe/Mischgebiet)
- Erschließung: Strom, Wasser, Abwasser
- Verkehrsanbindung: Sichtbarkeit, Zufahrt, Parkplätze
- Immissionsschutz: Gerüche, Lärm, Abluft
Frühzeitige Abstimmung mit Bauamt und Fachplanern spart Zeit und Kosten.
4. Genehmigung und rechtliche Anforderungen
Für den Bau eines Freestander Bakery Cube sind in der Regel erforderlich:
- Bauantrag inkl. Statik und Brandschutz
- Gewerberechtliche Genehmigung
- Hygienekonzept nach Lebensmittelrecht
- ggf. Stellplatznachweis
TIPP: Mit einem erfahrenen Baupartner lassen sich Genehmigungsprozesse deutlich beschleunigen.
5. Technik und Ausstattung des Bakery Cubes
Ein funktionierender Bakery Cube benötigt eine präzise Planung der Technik:
- Backöfen und Kühltechnik
- Lüftungs- und Abluftanlagen
- Energieeffiziente Haustechnik
- Hygienische Oberflächen und kurze Wege
Moderne Konzepte setzen auf energieeffiziente Systeme und einen klar strukturierten Grundriss – für reibungslose Abläufe im Alltag.
6. Kosten: Womit müssen Sie rechnen?
Die Kosten für einen Freestander Bakery Cube hängen u. a. ab von:
- Größe und Ausbaustufen
- Technischer Ausstattung
- Architektur und Design
- Standort und Erschließung
Wichtig: Durch modulare Bauweise und industrielle Vorfertigung sind die Kosten transparent und gut kalkulierbar. Konkrete Zahlen sollten immer projektbezogen ermittelt werden.
7. Gestaltung und Markenauftritt
Trotz kompakter Größe bietet ein Bakery Cube viel Spielraum für:
- Individuelle Fassadengestaltung mit Putz, Klinker oder Holz
- Wiedererkennbares Markendesign
- Flexible Raumplanung
So wird der Cube nicht nur Verkaufsfläche, sondern Markenbotschafter.
Sie fragen
Brauche ich immer eine Baugenehmigung für einen Bakery Cube?
Kann ein Bakery Cube erweitert oder versetzt werden?
Ist ein Bakery Cube energieeffizient planbar?
Eignet sich ein Bakery Cube auch für kleinere Grundstücke?
Wie individuell ist die Planung?
Fazit

Jetzt Kontakt aufnehmen



























